на главную
о компании контакты новости отправить запрос

Дома из Бруса

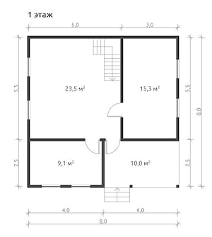
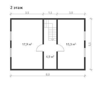
Проект Дома ИЗ БРУСА 8 НА 8


Общая площадь: 86,0 кв.м.
Жилая площадь: 65,8 кв.м.
Площадь застройки: 64 кв.м.
Этажность: 2
Срок постройки: 14 дней

Чем же так будет интересен типовой дом из бруса 8х8 . Прежде всего тем, что в нем уже при сборке предусмотрен так называемый второй свет, размещенный над гостиной комнатой, благодаря которому пространство всего помещения визуально увеличивается, придавая при этом некий шарм, роскошный вид. Это двухэтажный дом из дерева. Издавна известно, что дерево – это превосходный, экологически чистый материал для строительства, который не только не нанесет человеку, проживающему в таком доме, вреда, но и станет весьма полезным. Многие наши покупатели замечают, что в таких домах гораздо легче дышать и очень приятно находиться, ведь он очень уютный и светлый, дарит внутреннее спокойствие и гармонию.

Согласно проекту , представленному на сайте, на первом этаже располагаются гостиная – рядом с кухней, помимо этого, на первом этаже предусмотрена комнате под санузел. Холл средних размеров и две комнаты размещены на втором этаже – вы сможете сделать из них уютную спальню для себя и детскую комнату для вашего ребенка. Дом такого типа будет украшением любого загородного участка. Он довольно просторный – вы не будете чувствовать себя в нем тесно и скованно, но и весьма компактный, а это, в свою очередь, говорит о том, что на вашем участке еще останется много место для небольшого огорода, сада, беседки для отдыха или других построек.

ПРОЕКТНЫЕ ЧЕРТЕЖИ:





Если вас заинтересовала представленная информация или вы не нашли нужный товар или услугу, пожалуйста, позвоните или отправьте запрос на консультацию:
Участник каталога
© 2025 Партнерстройконтракт
220013 Беларусь, г. Минск, Индекс, ул. Я.Коласа, 38-28
                            

Сайт работает на платформе Nestorclub.com